
常州市常群干燥設備有限公司
廠址: 常州市鄭陸鎮焦溪工業開發區
郵編: 213116
電話: 0519-88910067 0519-88900994
傳真: 0519-88900994
聯系人: 王才平
手機: 13861055230
網址:http://www.hedexny.com
郵箱: cq@cqdry.com
噴霧干燥制粒機特點:
集噴霧干燥/流化制粒于一體,實現液態物料一步法制粒;
采用噴霧工藝,特別適用微輔料,熱敏性物料。
應用:
制藥工業:片劑、沖劑、膠囊劑顆粒;低糖、無糖的中成藥顆粒;
食品:可可、咖啡、奶粉、顆粒果汁、調味品等;
其它行業:農藥、飼料、化肥、顏料、染料等。
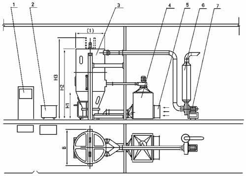
工作原理:
將一定的粉體物料放入流化床內作為晶種,液態物料經泵送至噴咀霧化器,與噴霧用高溫空氣瞬間接觸除去大部份水份,殘余水份則在底部流化床低溫干燥完成,并同時成粒。
設備參數:
項目 | 單位機型 | PGL-3B | PGL-5B | PGL-10B | PGL-20B | PGL-30B | PGL-80B | PGL-120B | |
流浸膏 | kg/h | 2 | 4 | 5 | 10 | 20 | 40 | 55 | |
kg/h | 4 | 6 | 15 | 30 | 40 | 100 | 140 | ||
沸騰能力 | kg/批 | 2 | 6 | 10 | 30 | 60 | 100 | 150 | |
kg/批 | 6 | 15 | 30 | 80 | 160 | 250 | 450 | ||
液體比重 | kg/L | ≤1.30 | |||||||
原料容器量 | L | 26 | 50 | 220 | 420 | 620 | 980 | 1600 | |
容器直徑 | mm | 400 | 550 | 770 | 1000 | 1200 | 1400 | 1600 | |
引風機功率 | kw | 4.0 | 5.5 | 7.5 | 15 | 22 | 30 | 37 | |
輔風機功率 | kw | 0.35 | 0.75 | 0.75 | 1.20 | 2.20 | 2.20 | 4 | |
蒸汽 | 耗量 | kg/h | 40 | 70 | 99 | 210 | 300 | 366 | 465 |
壓力 | Mpa | 0.40-0.60 | |||||||
電熱型功率 | kw | 9 | 15 | 21 | 25.5 | 51.5 | 60 | 75 | |
壓縮空氣 | 耗量 | m3/min | 0.9 | 0.9 | 0.9 | 0.9 | 1.1 | 1.3 | 1.8 |
壓力 | Mpa | 0.6 | |||||||
主機尺寸 | m | 1.3×0.66×2.5 | 1.5×0.82×2.6 | 1.55×1.2×3 | 1.9×1.3×3.5 | 2.5×1.7×4.3 | 2.65×1.86×4.7 | 3.5×2.1×5.65 | |
安裝示意圖:

